Demirağ Organize Sanayi Bölgesi'nin altyapı işlerinin protokolü imzalandı
SİVAS (AA) - TBMM Bayındırlık, İmar, Ulaştırma, Turizm Komisyonu Başkanı ve AK Parti Sivas Milletvekili Mehmet Habib Soluk, Demirağ Organize Sanayi Bölgesi'nin...
SİVAS (AA) - TBMM Bayındırlık, İmar, Ulaştırma, Turizm Komisyonu Başkanı ve AK Parti Sivas Milletvekili Mehmet Habib Soluk, Demirağ Organize Sanayi Bölgesi'nin altyapı işlerine ait Bilim Sanayi ve Teknoloji Bakanlığı tarafından imzalanmış protokolü Vali Davut Gül’e takdim etti.
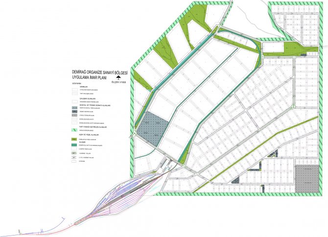
Sivas merkeze 25 kilometre mesafede Kovalı mevkisinde 814 hektar alana kurulan Demirağ Organize Sanayi Bölgesi için hazırlanan altyapı projelerinin yönetim kurulu üyelerince imzalandığını belirten Vali Davut Gül, "Hazırlanan protokol Bilim Sanayi ve Teknoloji Bakanlığı adına Müsteşar Dr. Veysel Yayan'ın imzasıyla yürürlüğe girdi. Altyapı protokolünün onaylanmasıyla yapılacak ihale sonucu bölgenin yol, su, elektrik, iletişim doğalgaz ve kanalizasyon gibi işlerinin inşaatlarına başlanacak." dedi.
Uzun süredir gündeminde yer alan ancak girişimlere rağmen bir süre askıda kalan projenin başlatıldığını belirten Gül, "2. Organize Sanayi Bölgesi için 2015 yılında bölgenin imar planı yapılarak alana Lojistik Merkez de dahil edilmişti. Demir yolu hattı da bulunan 2. Organize Sanayi Bölgesi'nin 12 Mart'ta Bilim Sanayi ve Teknoloji Bakanlığınca planları onaylanmıştı. Altyapı projeleri de hazırlanarak bakanlık onayına sunulan ve onaydan çıkan projeler için İl Özel İdaresine gönderilen ödenekle birlikte ihale gerçekleştirilecek ve yapım işine çıkılacak. Altyapı inşaatının ardından da yer talebinde bulunan ve yer tahsisi yapılan firmalar inşaatlarına başlayarak, üretime geçebilecekler. Demirağ Organize Sanayi Bölgesi'nin hayata geçmesinde her türlü desteği sağlayan Başbakanımız Sayın Binali Yıldırım'a, Milli Eğitim Bakanımız Sayın İsmet Yılmaz'a, milletvekilimiz Habib Soluk'a, ilimiz milletvekillerine, Bilim Sanayi ve Teknoloji Bakanlığı bürokratlarına ve tüm emeği geçenlere teşekkür ediyorum." ifadelerini kullandı.
Demirağ, Organize Sanayi Bölgesi'nde onaylı imar planına göre 226 sanayi parseli bulunduğunu aktaran Soluk da "Demirağ Organize Sanayi Bölgesi, yatırımcılara ve istihdama büyük katkı sağlayacak. Acele kamulaştırma ve yerelde ihale etme yetkisi verilmesinde büyük katkıları olan Cumhurbaşkanımız Sayın Recep Tayyip Erdoğan'a, Başbakanımız Sayın Binali Yıldırım ile Milli Eğitim Bakanımız İsmet Yılmaz ve milletvekili arkadaşlarımıza teşekkür ediyorum." dedi.

AA
Kaynak:
